Héctor M. Pérez

(México, 1960)

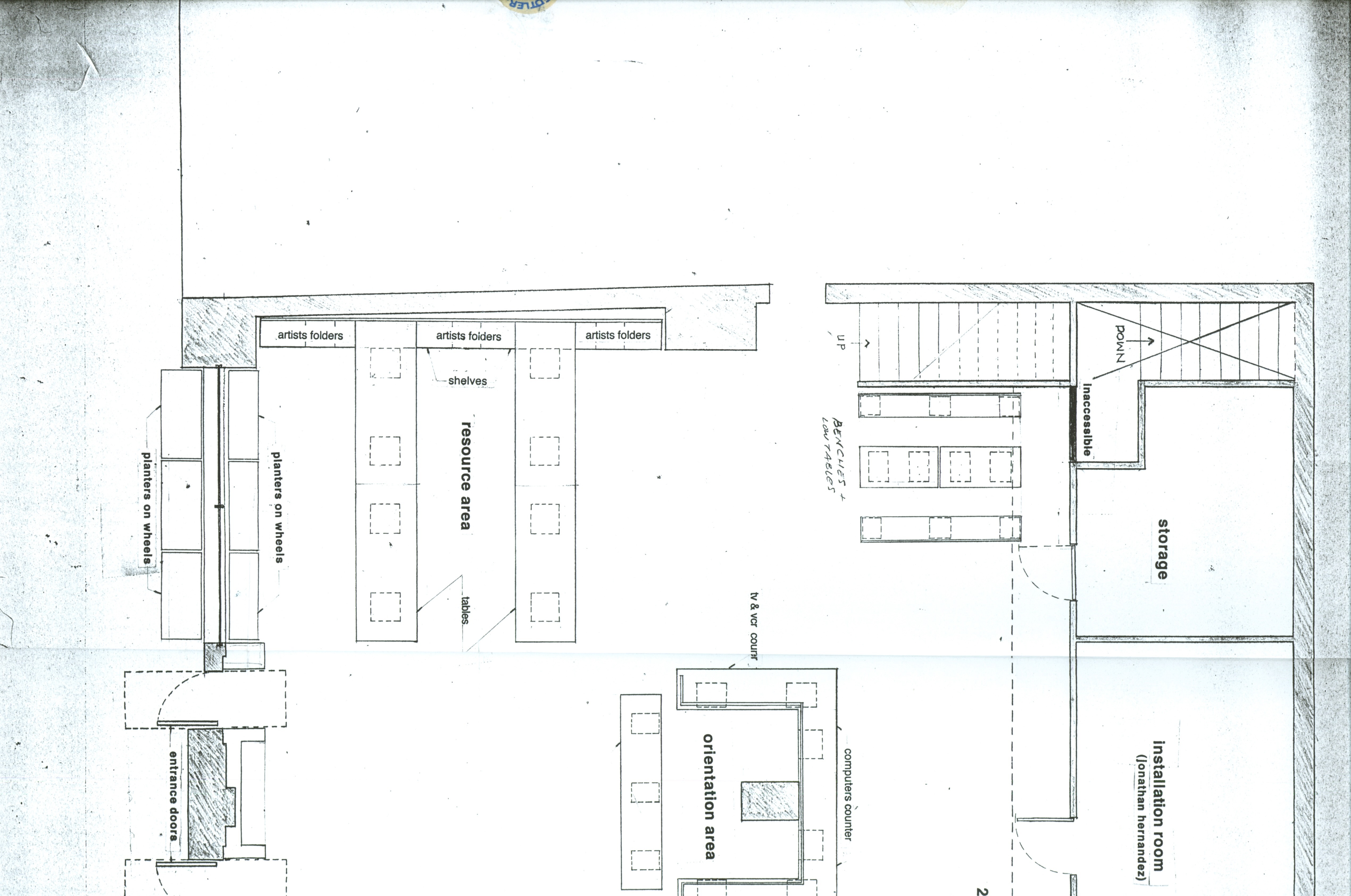
El arquitecto residente de San Diego, Héctor Pérez, recibió un encargo específico por parte de inSITE2000: crear dos sitios, uno en San Diego y otro en Tijuana, que funcionaran como centros de información sobre la exhibición y que también albergaran algunos proyectos terminados. La intención era generar un espacio donde el público pudiera ver los proyectos multimedia y examinar con detenimiento materiales relacionados con la exhibición en general. Estos dos sitios también sirvieron como sede de paneles de discusión y conferencias de artistas en el marco del evento Conversations/Conversaciones, uno de los componentes de inSITE2000. En sus diseños, Pérez incorporó elementos que consideró centrales en el paisaje común de San Diego y Tijuana, como la simplicidad, la movilidad, la economía, la adaptabilidad y la multifuncionalidad. En Tijuana, el in(fo)SITE se ubicaba en el Centro Cultural Tijuana, y en San Diego, se encontraba en el centro de la ciudad, dentro del edificio del Spreckels Theater.

Curadores: Susan Buck Morss, Ivo Mesquita, Osvaldo Sánchez y Sally Yard
Sedes: Centro Cultural Tijuana y Spreckels Theatre building, San Diego